Quadrilocale in vendita

Modena, Via Portorico
€ 290.000
4 locali 4 locali
90 Mq 90 Mq
2 bagni 2 bagni

Quadrilocale in vendita

Modena, Via Portorico

Descrizione annuncio

Modena Via Portorico

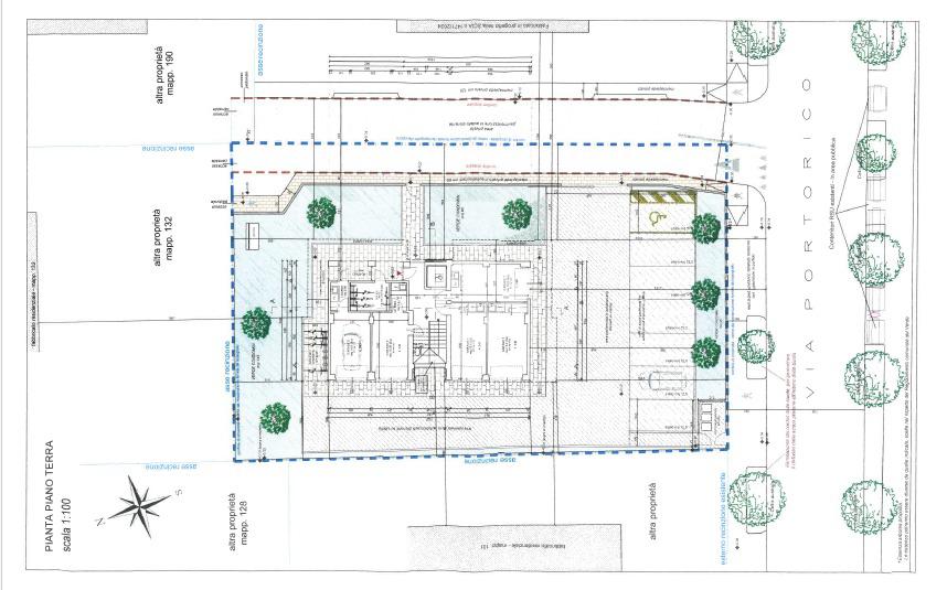
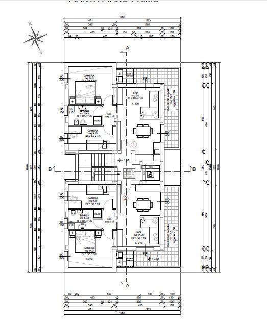
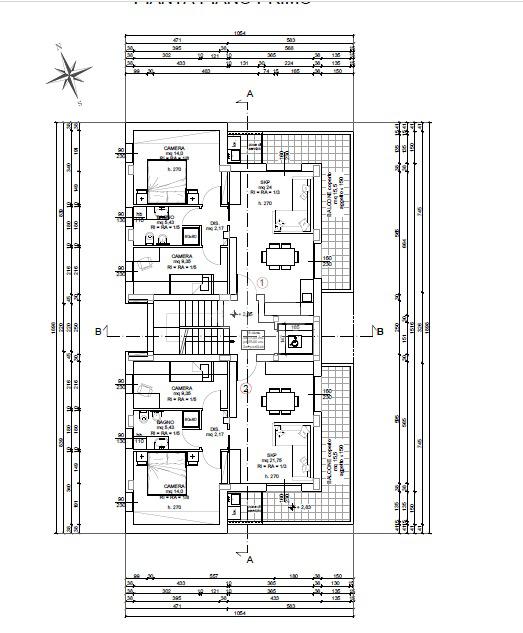
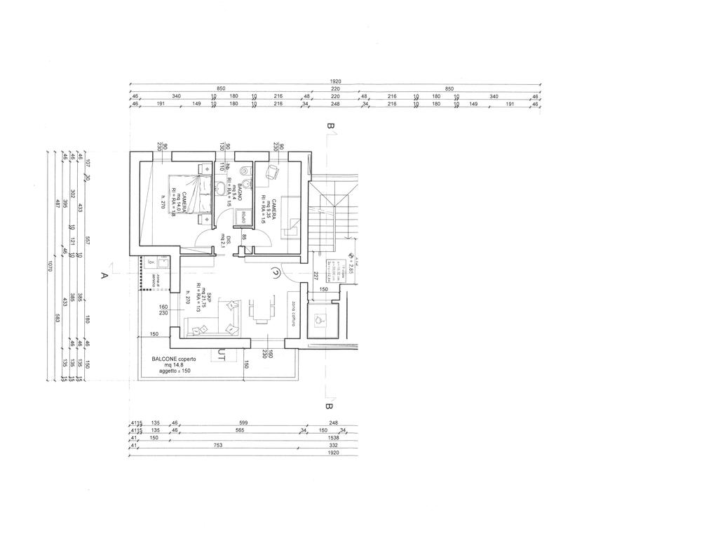
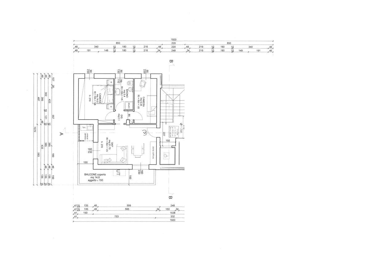
Presentiamo palazzina di nuova costruzione in classe energetica A4 di soli 3 piani, di prossima realizzazione con concessione edilizia approvata dal comune.

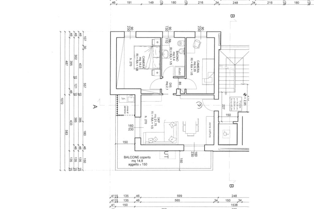
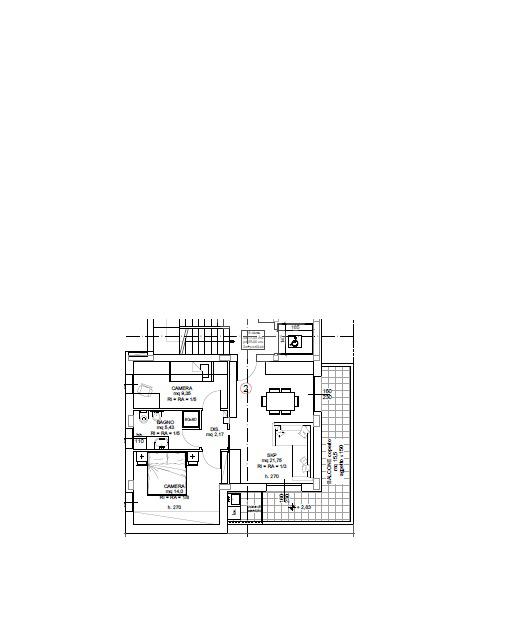
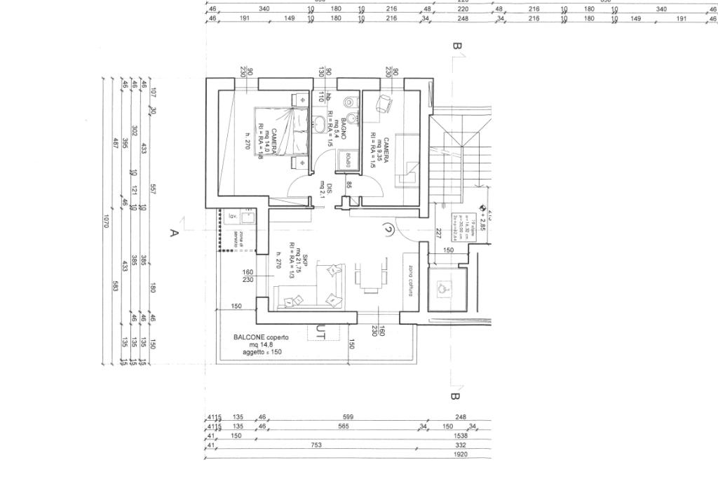
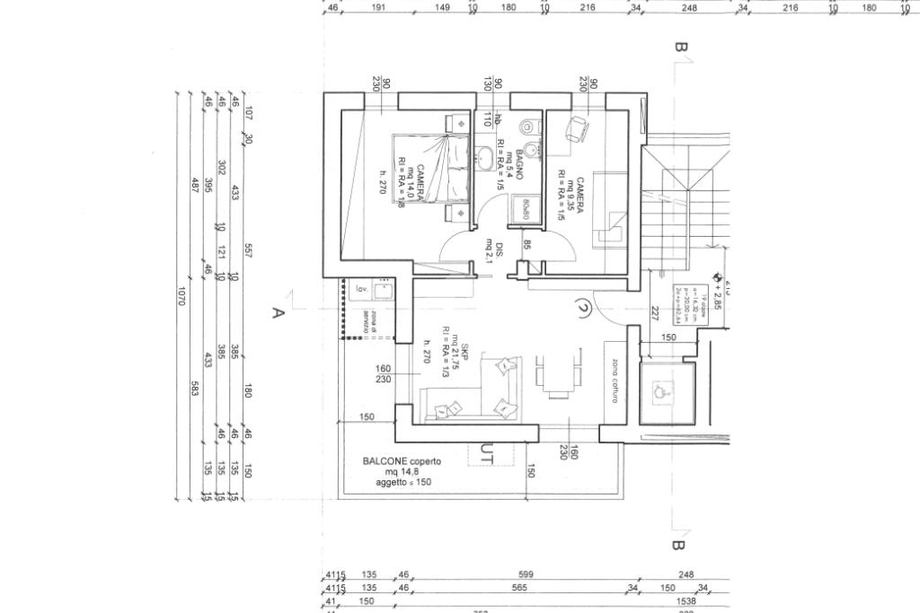
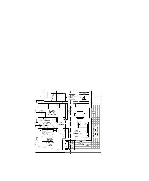
Questa tipologia è composta da un ingresso sala con annessa zona cottura, due camere da letto, due bagni, terrazzo

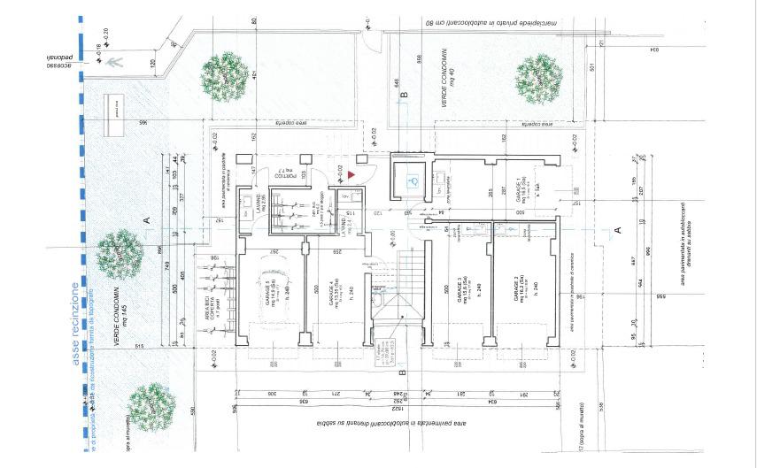
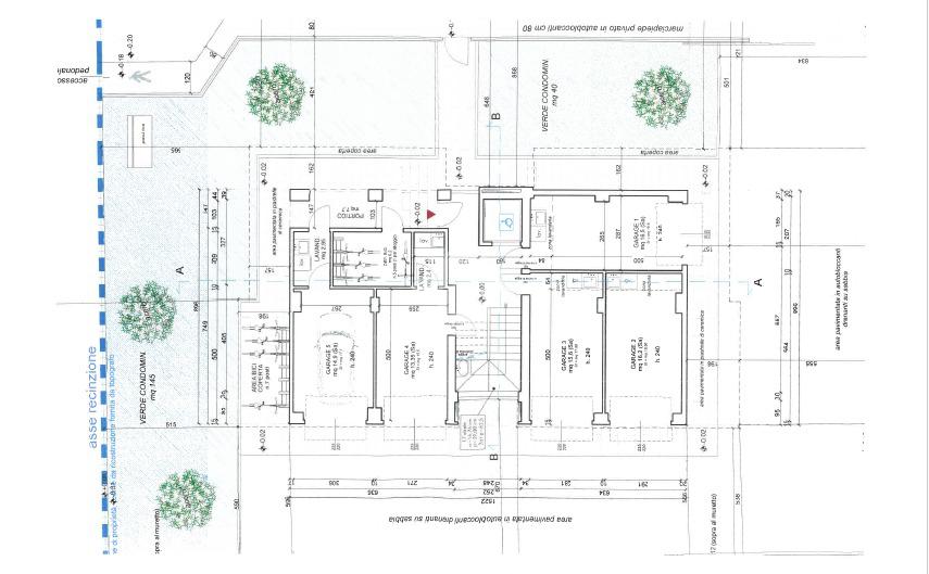
Garage Incluso nel prezzo.

Riscaldamento a pavimento, pannelli fotovoltaici da 1,5 kw per singola unità abitativa.

Gasbeton da 40 cm, ad alta efficienza energetica, mattone NZEB.

Non è presente il gas è tutto ad induzione.

Per maggiori informazioni possiamo valutare progetti e planimetrie presso il nostro ufficio in Viale Jacopo Barozzi

Non esitare a chiamarci pre prendere un'appuntamento al 3494181695/ 059345324

Mostra tutto

Nelle vicinanze

Trasporto pubblico Trasporto pubblico
stazione di Modena
stazione di Modena
2,7 Km
Cavo Argine bv Portorico
Cavo Argine bv Portorico
60 m
PORTORICO
PORTORICO
200 m
Ricariche auto elettriche Ricariche auto elettriche
Enel X Opel Renostar
1,3 Km
MODENA Nonantolana | ENELX BY HERA
1,3 Km
Eurospar Nonantolana | EnelX
1,8 Km
Centro Commerciale I Portali | EnelX by Hera
2,1 Km
Duferco Casa della Salute
2,6 Km
Scuole Scuole
Scuola Primaria Statale "A. Gramsci"
1,4 Km
Scuola Materna "Cuore Immacolato di Maria"
1,8 Km
Scuola Primaria Statale "C. Collodi"
1,9 Km
Liceo Statale “Carlo Sigonio”
2,3 Km
Scuola Media Statale "G. Ferraris"
2,3 Km
Farmacia Farmacia
Farmacia
560 m
Farmacia Torrenova
1,2 Km
Comunale Crocetta
1,9 Km
Farmacia Comunale i Portali
2,2 Km
Farmacia Sant. Elena
2,6 Km
Supermercati Supermercati
Conad City
1,2 Km
Eurospar
1,8 Km
Ipercoop I Portali
2,1 Km
Ipercoop
2,1 Km
NaturaSì
2,3 Km
Negozi Negozi
Forno S. Caterina
1,4 Km
Alimentari
1,9 Km
Nara Camicie
2,1 Km
Intimissimi
2,1 Km
Original Marines
2,1 Km
Bar Bar
Caffetteria dei Torrazzi
380 m
Smile
590 m
Yogorino Gelateria
2,1 Km
Glamour
2,1 Km
Botega del Caffe
2,2 Km
Ristoranti Ristoranti
Il Puffo
1,3 Km
L’Osteria di Modena
1,8 Km
La Lanterna
1,9 Km
Pizzeria del Viale
2,1 Km
Rita
2,1 Km
Mostra tutto

Caratteristiche

Rif.:
61098041
Piano:
1 di 3 con ascensore (Piano medio)
Box:
1
Posti auto:
1
Terrazzi:
1
Camere da letto:
2
Mostra tutto
Prezzo Prezzo
€ 290.000
Rata mutuo Rata mutuo
€ 1.367 / mese
Spese annue Spese annue
€ 0
Proponi il tuo prezzoProponi il tuo prezzo

Classe Energetica

A4
A4
A4
A4
A4
A4
A4
A4
A4
EP globale non rinnovabile:
0.00 kW h/m² anno
EP globale rinnovabile:
0.00 kW h/m² anno
EP invernale del fabbricato:
EP estiva del fabbricato:
Anno di costruzione:
2027
Riscaldamento:
Autonomo
Tipo impianto:
A pavimento
Tipo alimentazione:
Pannelli

Ti interessa visionare l'immobile?

Fissa un appuntamento  Fissa un appuntamento

Richiedi informazioni

Clicca su Leggi per aprire l'informativa
* Questi campi sono obbligatori

Calcola il tuo mutuo

Semplice e senza impegno
Anticipo

( % )
Mutuo

( % )

pochi semplici passi

inserisci i tuoi dati
Questionario completato
Grazie per aver richiesto un appuntamento senza impegno con un nostro Consulente del Credito e Assicurativo.

Hai inserito correttamente tutti i dati necessari e a breve riceverai una e-mail con un link da convalidare per inviare i tuoi dati.
Affiliato
Modena Case Srl
Via Jacopo Barozzi, 110 41124 Modena (MO)

Il nostro staff


  • Emanuele Benefico
    Collaboratore

  • Alessia Greco
    Collaboratrice

  • Omer Restani
    Affiliato

  • Elga Valenti
    Affiliata
Via Jacopo Barozzi, 110 41124 Modena (MO)
Zona: Modena San Faustino-Buon Pastore-Villaggio Zeta-Centro Storico-Storchi
Mostra su mappa
Orari: Lun-Ven 9:00-13:00/15:00-19.30 Sabato 9:00-13:00
Affiliato
Modena Case Srl
Via Jacopo Barozzi, 110 41124 Modena (MO)

2025 Tecnocasa Franchising S.p.A. - P. IVA 08365160152 - Via Monte Bianco 60/A 20089 Rozzano (MI). Ogni agenzia ha un proprio titolare ed è autonoma. Privacy policy | Policy utilizzo | Cookie policy