Porzione di quadrifamiliare in vendita

Modena, Via A. Araldi - Università
€ 360.000
4 locali 4 locali
157 Mq 157 Mq
3 bagni 3 bagni

Porzione di quadrifamiliare in vendita

Modena, Via A. Araldi - Università

Descrizione annuncio

UNIVERITà

Cerchi una soluzione terra-cielo? Ampio terrazzo abitabile?

Ecco quello che fa per te:

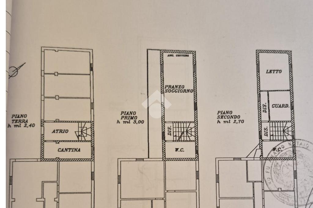
In zona Università, in contesto silenzionso si propone porzione di casa terracielo con ingresso indipendente, che si estende su più livelli.

Ingresso disimpegno, scala in legno che ci conduce al primo piano composto da soggiorno open space, con cucina a vista e accesso ad un terrazzo abitabile di 17 mq. Bagno finestrato.

Al piano superiore sempre raggiungibile con la scala, abbiamo due camere da letto, secondo bagno con la vasca.

Garage (collegato internamente con la casa) e due posti auto di proprietà.

Tre taverne e un terzo bagno di pertinenza.

Per ulteriori informazioni contattare il numero: 059345324

Mostra tutto

Nelle vicinanze

Trasporto pubblico Trasporto pubblico
Modena Piazza Manzoni
Modena Piazza Manzoni
1,4 Km
stazione di Modena
stazione di Modena
2,9 Km
Modena, Terminal Via Gottardi
Modena, Terminal Via Gottardi
230 m
Vignolese bv Saluzzo
Vignolese bv Saluzzo
500 m
Modena Policlinico
Modena Policlinico
970 m
Ricariche auto elettriche Ricariche auto elettriche
Modena Dipartimento di Ingegneria | EnelX by Hera
290 m
Duferco Ospedale di Modena
690 m
Policlinico di Modena | EnelX by Hera
860 m
Stazione Modena Manzoni | EnelX by Hera
1,5 Km
Centro Commerciale I Portali | EnelX by Hera
1,5 Km
Scuole Scuole
Campus Scientifico
250 m
Dipartimento di Ingegneria "Enzo Ferrari"
350 m
Scuola Primaria Statale "Sant'Agnese"
740 m
Scuola Primaria “Sacro Cuore”
840 m
Scuola Primaria Statale "G. Graziosi"
900 m
Farmacia Farmacia
Farmacie Comunali
880 m
Sanitaria Parafarmacia Dottor Maurizio Borghi Snc
1,3 Km
Farmacia Comunale i Portali
1,5 Km
Santa Caterina
1,7 Km
S. Antonio
1,8 Km
Ospedali Ospedali
Policlinico di Modena
590 m
Ospedali
2,1 Km
Villa Rosa
2,3 Km
Ospedale Sant'Agostino
2,8 Km
Supermercati Supermercati
COOP
390 m
ECU
800 m
Conad City
1,3 Km
Conad
1,4 Km
Ipercoop
1,5 Km
Negozi Negozi
Services DPT
1,1 Km
Alimentari
1,3 Km
Planet mode
1,3 Km
Nuovo Panificio Alberghini
1,4 Km
Antiba
1,4 Km
Bar Bar
Allegretti
540 m
Bar
1,2 Km
Embassy
1,3 Km
Classic Bar
1,4 Km
Botega del Caffe
1,5 Km
Ristoranti Ristoranti
L'Antica Grama
470 m
Ristorante Midori
500 m
Puro
570 m
Pepa L'Arepa
780 m
Kaiyue
950 m
Mostra tutto

Caratteristiche

Rif.:
61116093
Piano:
1 di 2 (Piano su più livelli)
Box:
1
Posti auto:
2
Terrazzi:
1
Camere da letto:
2
Mostra tutto
Prezzo Prezzo
€ 360.000
Rata mutuo Rata mutuo
€ 1.697 / mese
Spese annue Spese annue
€ 600
Proponi il tuo prezzoProponi il tuo prezzo
Immobile valutato con T·Valuta

Classe Energetica

G
G
G
G
G
G
G
G
G
EP globale non rinnovabile:
250.00 kW h/m² anno
EP globale rinnovabile:
25.40 kW h/m² anno
EP invernale del fabbricato:
EP estiva del fabbricato:
Anno di costruzione:
1980
Riscaldamento:
Autonomo
Tipo impianto:
A radiatori
Tipo alimentazione:
Metano

Ti interessa visionare l'immobile?

Fissa un appuntamento  Fissa un appuntamento

Richiedi informazioni

Clicca su Leggi per aprire l'informativa
* Questi campi sono obbligatori

Calcola il tuo mutuo

Semplice e senza impegno
Anticipo

( % )
Mutuo

( % )

pochi semplici passi

inserisci i tuoi dati
Questionario completato
Grazie per aver richiesto un appuntamento senza impegno con un nostro Consulente del Credito e Assicurativo.

Hai inserito correttamente tutti i dati necessari e a breve riceverai una e-mail con un link da convalidare per inviare i tuoi dati.
Affiliato
Modena Case Srl
Via Jacopo Barozzi, 110 41124 Modena (MO)

Il nostro staff


  • Emanuele Benefico
    Collaboratore

  • Alessia Greco
    Collaboratrice

  • Omer Restani
    Affiliato

  • Elga Valenti
    Affiliata
Via Jacopo Barozzi, 110 41124 Modena (MO)
Zona: Modena San Faustino-Buon Pastore-Villaggio Zeta-Centro Storico-Storchi
Mostra su mappa
Orari: Lun-Ven 9:00-13:00/15:00-19.30 Sabato 9:00-13:00
Affiliato
Modena Case Srl
Via Jacopo Barozzi, 110 41124 Modena (MO)

2025 Tecnocasa Franchising S.p.A. - P. IVA 08365160152 - Via Monte Bianco 60/A 20089 Rozzano (MI). Ogni agenzia ha un proprio titolare ed è autonoma. Privacy policy | Policy utilizzo | Cookie policy